
Dodatkowo wszystkie zestawienia generowane przez funkcje nakładek e-CAD tworzone są na podstawie opisów (standardowych bloków z atrybutami, których wygląd można dodatkowo zmieniać według własnych preferencji). Dzięki takiemu podejściu do projektowania użytkownik ma pełny dostęp i pełną kontrolę nad danymi w projekcie i nie musi zastanawiać się i tracić czas na szukanie skąd co się bierze.
Menu, funkcjonalności i narzędzia nakładki e-CAD Stal Śruby:
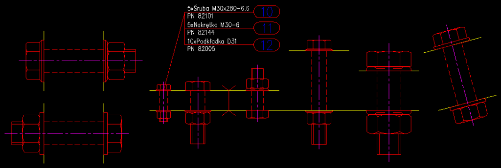
- Rysowanie śrub w przekroju bocznym [E-SRP]
- Rysowanie śrub w widoku z góry [E-SRG]
- Uproszczone symbole nakrętek:
- symbol nakrętki M10 [E-M10]
- symbol nakrętki M12 [E-M12]
- symbol nakrętki M16 [E-M16]
- symbol nakrętki M20 [E-M20]
- symbol nakrętki M24 [E-M24]
- symbol nakrętki M27 [E-M27]
- symbol nakrętki M30 [E-M30]
- Opis Pozycja Nadrzędna śrub [E-OPSR]
- Menager opisów Pozycji Nadrzędnych śrub [E-MOPSR]
- MultiMenager opisów Pozycji Nadrzędnych śrub [E-MMOPSR]
- Nadawanie opisu Pozycja Nadrzędna wielu opisom śrub jednocześnie [E-NOPSR]
- Renumeracja opisów śrub [E-RSR]
- Menager opisów śrub [E-MOSR]
- MultiMenager opisów śrub [E-MMOSR]
- Szukanie opisów śrub, nakrętek, podkładek [E-SNRSR]
- Usuwanie wszystkich znaczników szukania opisów śrub, nakrętek, podkładek [E-UZS]
- Zestawienie ilości oraz masy śrub, nakrętek i podkładek do rysunku DWG [E-ZSR]
- Zestawienie ilości oraz masy śrub, nakrętek i podkładek do arkusza Excela®
- Zestawienie ilości oraz masy śrub, nakrętek i podkładek do pliku tekstowego CSV
Uwaga: Posiadanie nakładki e-CAD Podstawowy jest wymagane, aby móc korzystać z pozostałych nakładek z serii e-CAD (e-CAD Stal, e-CAD Stal Śruby, e-CAD Pręty kodowane, e-CAD Żelbet, e-CAD Żelbet Siatki).
Branża: Budownictwo, Konstrukcje stalowe, żelbetowe i drewniane



